服务咨询热线:18008574499
您的位置:首页工程案例大理宾川熊仙琴吉宅 | 轻钢别墅案例

大理宾川熊仙琴吉宅 | 轻钢别墅案例

2026-03-09
在大理宾川的秀美风光中,云南尚品为熊仙琴女士打造的轻钢别墅,以现代新中式美学与精工品质,成为当地乡村自建房的标杆之作。
在大理宾川的秀美风光中,云南尚品为熊仙琴女士打造的轻钢别墅,以现代新中式美学与精工品质,成
 

🏠 项目概况

 
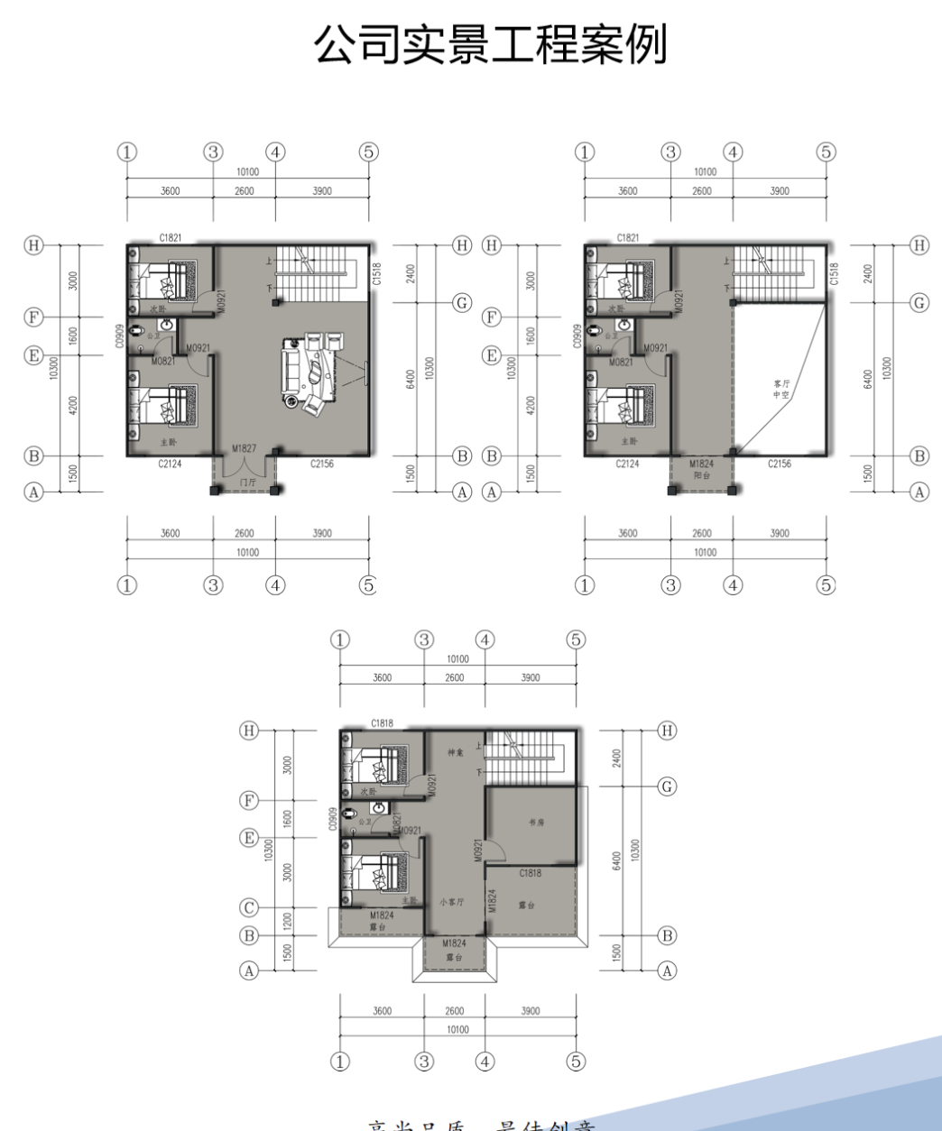
  • 项目名称:大理宾川 —— 熊仙琴吉宅
  • 建筑风格:新中式轻奢风
  • 结构体系:轻钢龙骨装配式结构
  • 层数:三层(含顶层露台)
  • 核心优势:抗震耐久、施工高效、空间灵动、节能环保
 

✨ 设计亮点

 
  1. 外观美学
     
    建筑采用米白与深棕的经典配色,搭配大面积落地窗与精致线条,既保留了中式建筑的端庄大气,又融入了现代简约的通透感。三层挑高设计与对称布局,让整栋别墅在宾川的山水间显得格外挺拔雅致。
     
  2. 空间布局
     
    • 一层:入户门厅衔接开阔客厅,搭配主卧套房与独立卫浴,兼顾待客与日常起居的舒适。
    • 二层:可根据需求设计为挑空客厅或拓展空间,满足家庭聚会与观景需求。
    • 三层:双卧套房 + 小客厅 + 书房 + 露台,既保证了家人的私密休憩,又提供了品茶、观景的休闲天地。
     
  3. 技术优势
     
    采用轻钢龙骨结构,自重轻、强度高,抗震性能优异;工厂预制 + 现场装配的模式,大幅缩短施工周期,同时减少建筑垃圾,契合绿色建筑理念。
     
 

💡 价值主张

 
云南尚品始终以 “高尚品质,**创意” 为理念,在熊仙琴吉宅项目中,不仅为业主打造了一座美观耐用的家,更通过定制化设计,让建筑与大理的自然人文环境深度融合,成为承载家族记忆与美好生活的理想居所。

部分图文转载自网络,版权归原作者所有,如有侵权请联系我们删除。如内容中如涉及加盟,投资请注意风险,并谨慎决策

上一篇
下一篇