服务咨询热线:18008574499
您的位置:首页工程案例大理宾川观音箐 —— 邓水斌吉宅 | 轻钢别墅案例

大理宾川观音箐 —— 邓水斌吉宅 | 轻钢别墅案例

2026-03-09
在大理宾川观音箐的青山环抱中,云南尚品匠心打造的邓水斌吉宅,以新中式合院风格与轻钢装配式技术,将传统院落情怀与现代居住需求**融合,成为当地乡村高端自建房的典范。

🏠 项目概况

 
  • 项目名称:大理宾川观音箐 —— 邓水斌吉宅
  • 建筑风格:新中式合院风
  • 结构体系:轻钢龙骨装配式结构
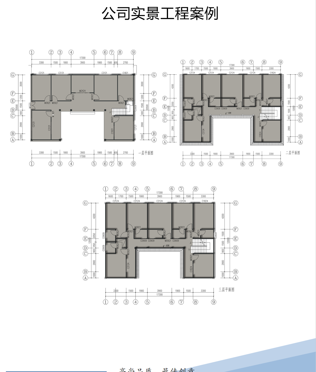
  • 层数:三层(含庭院式布局)
  • 核心优势:抗震耐久、施工高效、空间灵动、节能环保
 

 

✨ 设计亮点

 
  1. 外观美学
     
    建筑采用深灰瓦顶与浅灰墙面的经典配色,搭配飞檐翘角与木质装饰线条,既保留了中式合院的庄重典雅,又融入了现代简约的通透感。三层挑高设计与围合式布局,让整栋别墅在观音箐的山水间显得格外沉稳大气。
     
  2. 空间布局
     
    • 一层:采用 “U 型” 合院布局,中央庭院作为核心景观,两侧分布多间卧室与公共空间,既保证了私密性,又实现了室内外的自然过渡。
    • 二层:延续合院格局,卧室与公共区域环绕庭院,形成 “院中有院” 的层次感,满足家庭聚会与观景需求。
    • 三层:拓展出更多卧室与公共空间,通过大窗与露台,将苍山洱海的风光引入室内,打造出兼具实用性与观赏性的居住体验。
     
  3. 技术优势
     
    采用轻钢龙骨结构,自重轻、强度高,抗震性能优异;工厂预制 + 现场装配的模式,大幅缩短施工周期,同时减少建筑垃圾,契合绿色建筑理念。
     
 

 

💡 价值主张

 
云南尚品始终以 “高尚品质,**创意” 为理念,在邓水斌吉宅项目中,不仅为业主打造了一座美观耐用的家,更通过定制化设计,让建筑与大理的自然人文环境深度融合,成为承载家族记忆与美好生活的理想居所。

部分图文转载自网络,版权归原作者所有,如有侵权请联系我们删除。如内容中如涉及加盟,投资请注意风险,并谨慎决策

上一篇
下一篇